Espace client
fr
Se connecter
Se connecter
Coup de coeur
Champigny-sur-Marne (94500)

5 pièces - 100 m²

CHAMPIGNY - Coeuilly

339 000 €
Ref : VMA10003600
A propos de ce bien

A la limite du Plessis Trévise, dans une rue calme et pavillonnaire, cette maison très lumineuse non mitoyenne offre toutes les qualités d'une maison où il fait bon vivre, moyennant quelques travaux de remise aux goûts du jour !

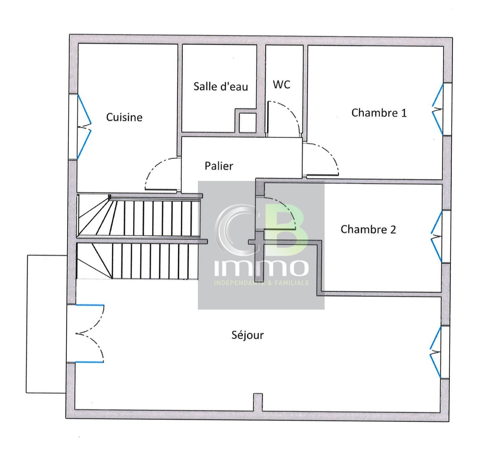
Elle est élevée sur un terrain de 382 m² et se compose en rez-de-jardin d'une entrée avec placard, d'une chaufferie, d'une salle d'eau avec wc, d'une buanderie et d'un garage. A l'étage vous trouverez un beau séjour de 28 m² ouvert sur un balcon, deux chambres, une cuisine dinatoire indépendante, une salle d'eau et un wc indépendant. Combles aménagés de 38 m² au sol (11.70 m² au dessus d'1m80).

Jardin paysagé tout autour de la maison exposé est/ouest !

RER E Villiers à 12 min en bus et centre ville du Plessis à 12 min à pieds.

Descriptif de ce bien
Général
Code postal 94500
surface terrain 382 m²
Surface loi Carrez (m²) 100 m²
Nombre de chambre(s) 3
Nombre de pièces 5
Nombre de niveaux 3
Vue jardin
Détails
Nb de salle d'eau 2
Cuisine Séparée
Type de cuisine Equipée
Mode de chauffage Gaz
Type de chauffage CHAUDIERE
Format de chauffage Central
Nombre de garage 1
Nombre de parking 2
Exposition Sud-Est
Année de construction 1965
Terrain arboré OUI
Composition
Rez de chaussée
entrée 7.75 m²

Chaufferie 7.26 m²

garage 38 m²

salle d'eau 3.3 m²

buanderie 6.6 m²

Etage 1
couloir 4.05 m²

cuisine 8.56 m²

salle d'eau 2.7 m²

WC 1.6 m²

chambre 9.43 m²

chambre 8.3 m²

salon/sejour 28.1 m²

Etage 2
chambre 38.3 m²

chambre 11.7 m²

Financier
Prix de vente 339 000 €
Les honoraires d'agence seront intégralement à la charge du vendeur  
Taxe foncière annuelle 1 464 €
Energie
DPE GES
Copropriété
Copropriété NON
Autour du bien
  • Commerces et santé
  • Loisirs
  • Ecoles
  • Transports
  • Pratique
Contacter pour ce bien
L'agence
Téléphone 01.48.85.55.66
Adresse
71 bis avenue du Général de Gaulle 94500 Champigny-sur-Marne

* Champ obligatoire

Les informations recueillies sur ce formulaire sont enregistrées dans un fichier informatisé par La Boite Immo agissant comme Sous-traitant du traitement pour la gestion de la clientèle/prospects de l'Agence / du Réseau qui reste Responsable du Traitement de vos Données personnelles. La base légale du traitement repose sur l'intérêt légitime de l'Agence / du Réseau. Elles sont conservées jusqu'à demande de suppression et sont destinées à l'Agence / au Réseau. Conformément à la loi « informatique et libertés », vous disposez des droits d’accès, de rectification, d’effacement, d’opposition, de limitation et de portabilité de vos données. Vous pouvez retirer votre consentement à tout moment en contactant directement l’Agence / Le Réseau. Consultez le site https://cnil.fr/fr pour plus d’informations sur vos droits. Si vous estimez, après avoir contacté l'Agence / le Réseau, que vos droits « Informatique et Libertés » ne sont pas respectés, vous pouvez adresser une réclamation à la CNIL. Nous vous informons de l’existence de la liste d'opposition au démarchage téléphonique « Bloctel », sur laquelle vous pouvez vous inscrire ici : https://www.bloctel.gouv.fr Dans le cadre de la protection des Données personnelles, nous vous invitons à ne pas inscrire de Données sensibles dans le champ de saisie libre.
Ce site est protégé par reCAPTCHA, les Politiques de Confidentialité et les Conditions d'Utilisation de Google s'appliquent.

Découvrir nos outils